
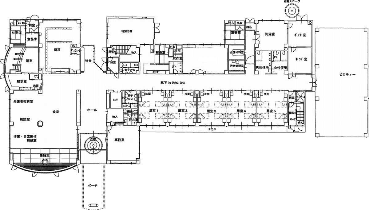
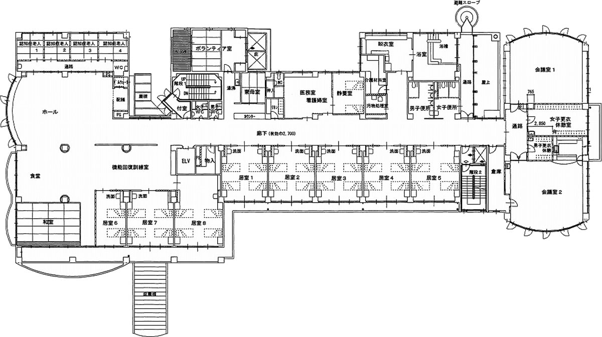
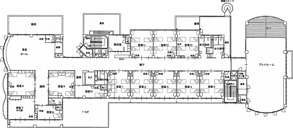
当施設は従来型多床室です。以下の居室、設備をご用意しています。原則として4人部屋ですが、個室等他の居室への入居をご希望される場合は、その旨お申し出ください。(ただし、ご利用者の心身の状況や居室の空き状況によりご希望に沿えない場合もあります。)
| 居室・設備 | 室数 | 面積 |
|---|---|---|
| 個室(1人部屋) | 6室 | 約10㎡ |
| 2人部屋 | 1室 | 約22㎡ |
| 4人部屋 | 18室 | 約35㎡ |
| (短期用)4人部屋 | 5室 | 約35㎡ |
| 食堂 | 2室 | 約75~100㎡ |
| 機能訓練室 | 1室 | 約46㎡ |
| 浴室 | 1室 | 約49㎡ |
| 機械浴室 | 1室 | 約43㎡ |
| 医務室 | 1室 | 約39㎡ |

●入所者の食事の様子

●麻機園 訓練室
●麻機園 浴室


